0318-5885888
综合管廊即地下城市管道综合走廊,在发达国家已经存在了一个多世纪,在系统日趋完善的同时其规模也越来越大。地下综合管廊系统不仅解决城市交通拥堵问题,还极大方便了电力、通信、燃气、供排水等市政设施的维护和检修。此外,该系统还具有一定的防震减灾作用。目前,我国已经加大了对综合管廊的重视和投入,根据国务院办公厅关于推进城市地下综合管廊建设的指导意见,到2020年,将建成一批具有国际先进水平的地下综合管廊并投入运营。
采用预应力钢棒的优势
综合管廊预应力采用《预应力混凝土用钢棒》,具有节省材料,施工简单等优势。
(1)预应力钢棒具有强度高,断后伸长率大,具有更强的抗震及疲劳性能。
(2)加工精度高、螺距小仅为1.5mm,螺纹升角低,回缩量低(0.1mm内), 具有更少的应力损失及更强的防松性能。
(3)出厂前根据管廊联接长度完成定尺,避免到施工现场后再截取造成钢材的浪费。
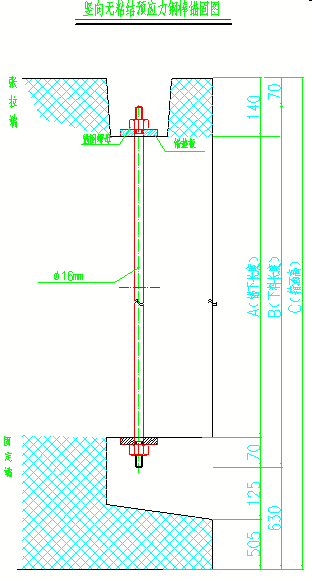
(4)预应力钢棒的张拉采用前端引伸杆张拉,不用预留千斤顶工作长度钢筋,张拉后不需要割筋。
综合管廊预应力布筋形式
(1)竖向预应力:综合管廊竖向预应力钢棒的固定端可有以下两种结构(1.底端锚槽,2.侧端锚槽),其张拉施工的形式见下图:

